首页 > 数码 > 科技化的图书馆.

科技化的图书馆.

 

     该图书馆的设计提供了学习和信息共享空间。灵感来自于学生在工作场所的需求和发展技能上的变化,设计不仅要满足用户当前的需求,而且要缩短教室和工作场所之间的距离。图书馆作为校园文化中心,对学习和信息共享提供了一个完整的框架,为知识的自由存取和提供学生在学习班结束后继续学习的机会,创造了一个良好的环境。


    几乎所有建筑设计是根据习惯、期望和今天学生的学术要求发出思考的。设计团队开始了一场激烈的愿景塑造过程,新的图书馆将建成全国最先进的图书馆此外,团队扩大了他们的基准(包括零售),美国各地的博物馆和酒店空间为其提供了多样性的视角。


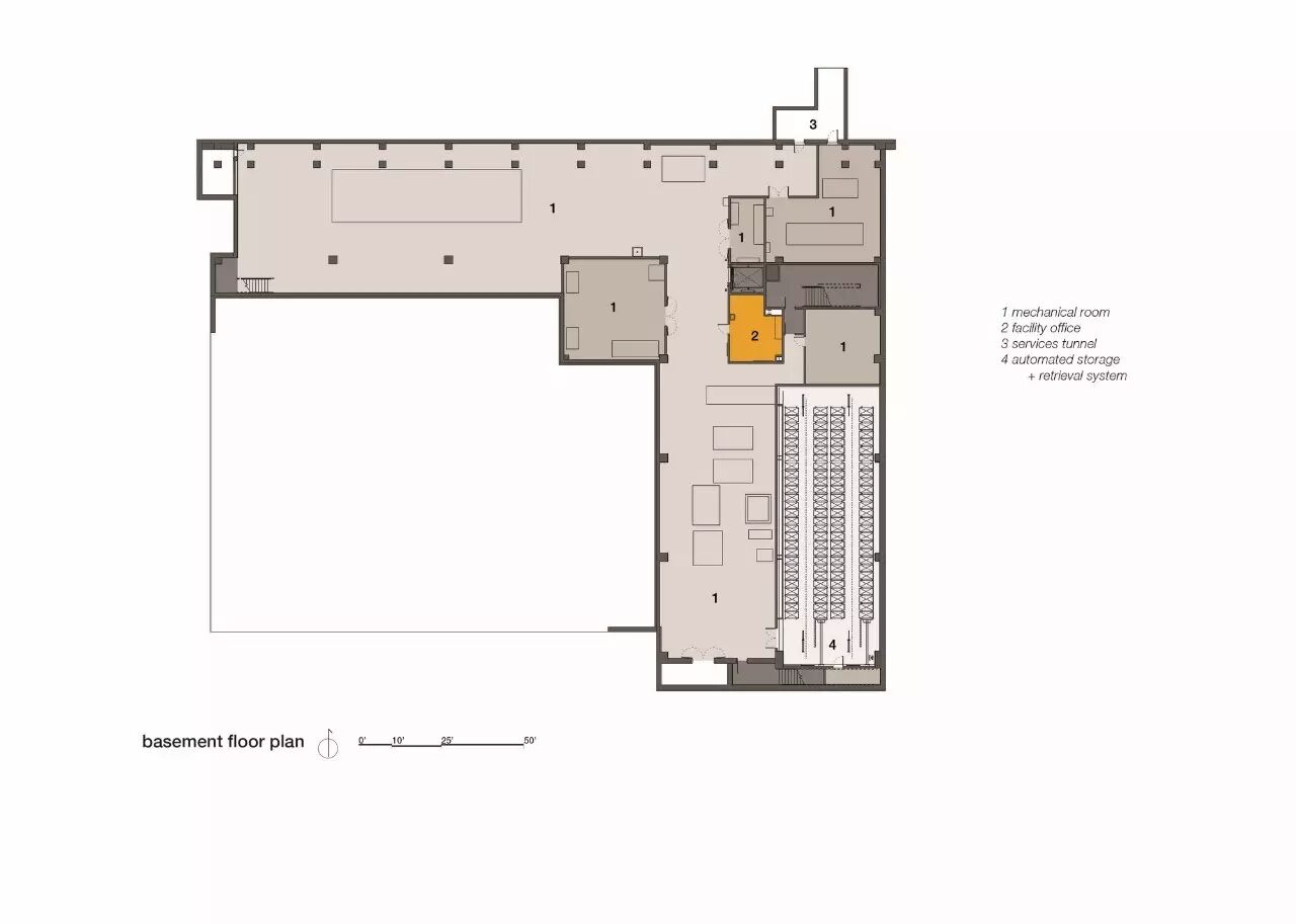
     在一开始设计的讨论,设计师确认学生需要更多的小组和个人研究领域。自动存储和检索系统提供了解决方案检索系统有60000040英尺高的穹顶小体块卷顾客可以从任何地方通过网络目录选一本书,将在不到一分钟到达服务台。


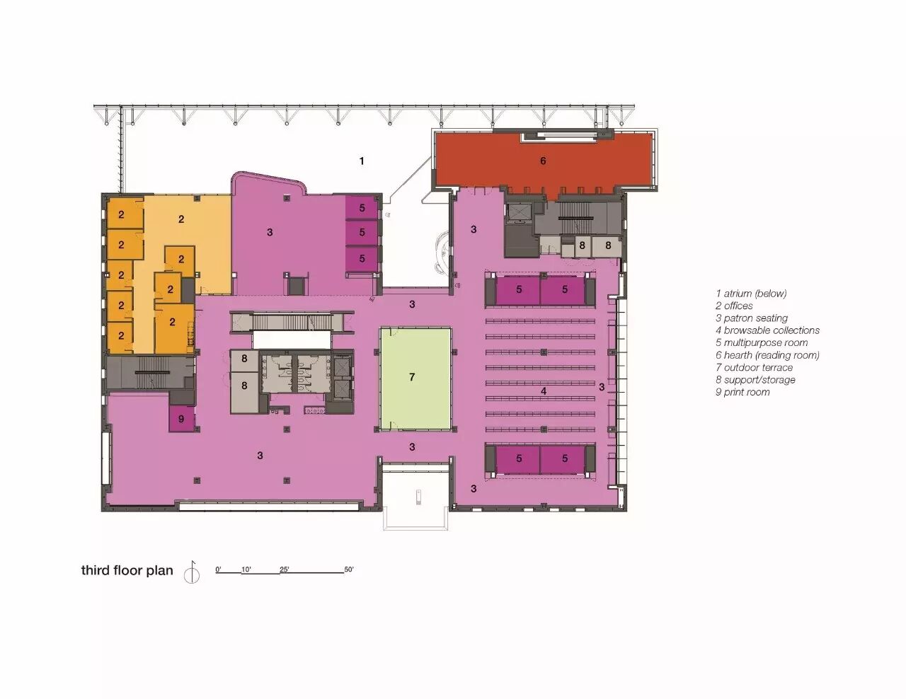
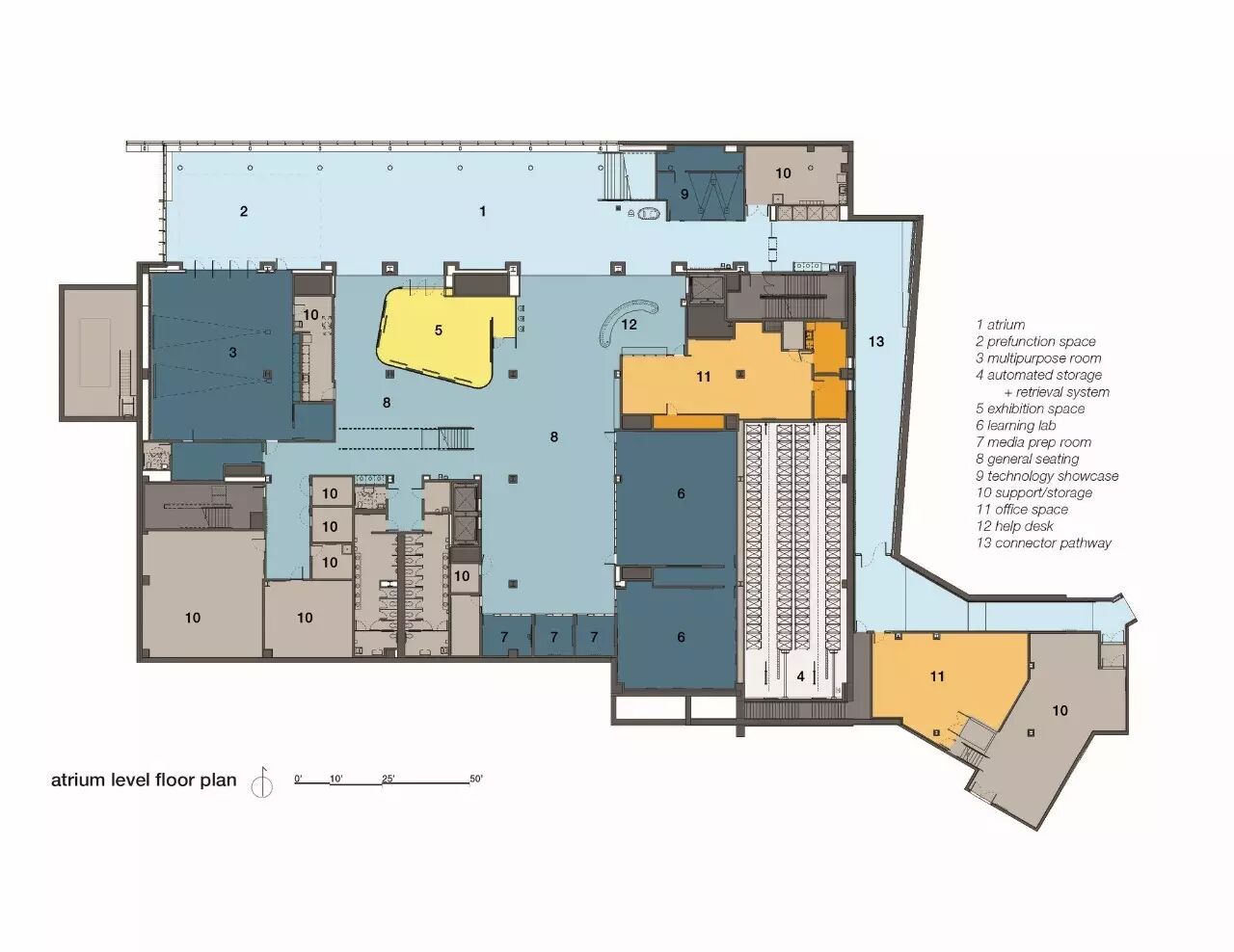
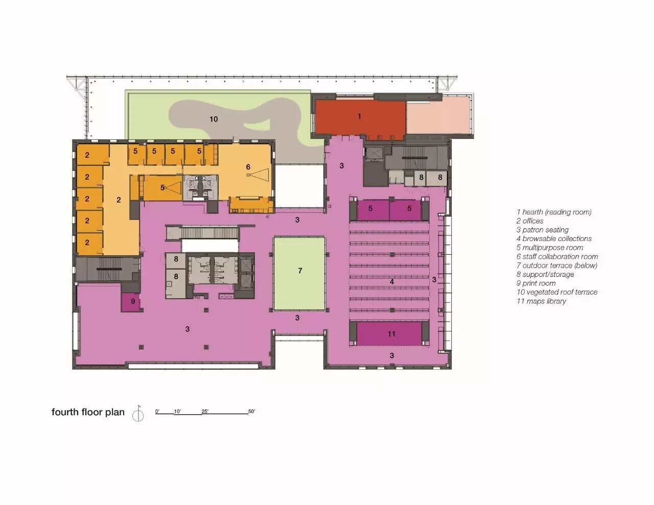
     随着图书馆自动化,设计团队专注于将一个空间展示出各种各样的“空间”供学生使用。灵活性是一个核心设计原则,并允许学生选择环境和工具适合他们的学习需求。灵活的家具、设备、服务点、季节性的室外空间和照明都纳入整个建设,鼓励学生根据自己的需要控制他们的环境。学生可以选择31种类型的室内和室外座位,包括膨胀靠窗的座位、装饰龛和各种各样的椅子,允许不同的任务、不同的姿态。此外,创新区等设施中每个元素的空间——表、座位、设备和选择对象,激发了创造力,培养了学生的创新能力。


    在较低楼层,会发现高能合作空间和服务点,旨在提高学习,制造轰动,产生能量,并提供意想不到的时刻。上层提供不同的安静和活跃的空间度,从二楼到四楼,书籍被安排在建筑的东侧,四周都是安静的学习空间。在建筑的南侧到集中翼的西侧有一个大的开放的区域提供协作活动。灵活的家具让学生在一个房间使用模块化的动态表、手机视频显示器和便携式白板来定义他们的工作空间。


    建筑的外部和内部给人留下深刻的印象。天然石材被大量运用于建筑外观,呼应了大峡谷的丰富建筑文脉。石材立面中间是一个40英尺高的玻璃幕墙,大穿孔窗户位于东部、西部和南部。这些窗户用于增加室内光线,同时通过遮阳百叶窗来减少眩光。白天,建筑充满自然光线,到达75%的室内空间;晚上,建筑成为一座灯塔,吸引用户。

   

    项目团队选择该地块考虑了其通过性,该位置的公共交通有利于使用自行车。此外,设施减少了停车场以及限制铺平道路来鼓励其他的交通方式。雨水管理的团队利用高反射率屋顶以控制热量升幅并且通过控制现场灯光减少人工白昼和增加夜间效果。设计也采取了一定措施减少灌溉的需要。


编辑:皮蛋

校对:无名


——   END   —— 

注:转载请注明来源

正设计QQ:2134785957

正设计交流Q群:340447929




友情链接