首页 > 互联网资讯 > 底滤缸初步完成,分享设计稿

底滤缸初步完成,分享设计稿

 广州最近春雨绵绵,天气比较潮湿。黏贴底缸事情都是见缝插针,看见晴天立即进行,经过几天的奋斗终于基本完成底缸的工作。现在和大家分享一下自己设计的底缸过滤功能,欢迎拍砖——引用论坛前辈说话“拍狠了,我拍回去”!


黏贴鱼缸的技术我就不多说了,因为版内很多技术贴介绍。这次也是本人初次自己黏贴鱼缸,技术有限,技术有限造成有些位置返工,这里提醒一下朋友们市场出售的普通玻璃尺寸不规范,设计尺寸按照预留的8mm玻璃+2mm胶缝,但购买的玻璃只有7mm,因此造成缝隙不理想!


这次底缸的设计:首先考虑到自己经常加班及出差不能保证正常换水频率,其次看到论坛很多前辈困扰三湖会翻沙,多与少造成底沙吸入下水,最后就是自己比较懒惰,因此加重物理过滤区域减少更换过滤棉的次数——添加了沉淀区。沉淀区的设计参考是来自于锦鲤、罗汉等版面及网上资料。下水首先经过沉淀区域然后进入干湿分离滴滤区,再进入各个过滤区域最后回归主缸,其他功能有:清洗底缸强拍,防溢水口,自动补水等。至于自动换水暂时未添置,感觉这技术要求更高,脑力有限。


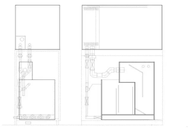
过滤功能总结为:下水——沉淀区(利用水的深度及毛刷,沉淀大部分杂质)——干湿分离滴滤盒——物理过滤区——生物过滤区域——加热——水泵——上水。(如下示意图)



黏贴准备工作:按照自己需要设计功能需求(尽量做到一步到位,减少日后麻烦)——定制玻璃及购买配件——利用工具先尝试不下胶黏贴,顺便可以检查尺寸——开始黏贴缸体——黏贴隔板,黏贴隔板时候要注意顺序,先粘贴内部及小格的,然后再外面或大间距的,这样比较容易打胶。

最后上图。


————— END —————

来源|龙巅三湖慈鲷

作者|jasondesign


往期精彩

清清爽爽的小缸,别有趣味

TDS高  硬度一定高吗?

坦湖中最瑰丽的品种之一——航空母舰

【7年不痒-不忘初心】一部深入浅出的水族纪录片

【黄E龙王鲷】 终于等到你 还好我没放弃


友情链接